Описание
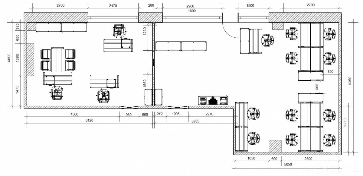
Дизайн-проект офиса в современном стиле с активным использованием цвета. Открытое пространство без перегородок с зонированием на рабочую, рекреационную, переговорную зоны. Яркие цветовые акценты стен в контрасте с нейтральной мебелью. Оригинальные дизайнерские светильники. Панорамные окна и витражи для максимального естественного освещения. Комнаты отдыха в едином стиле с общим пространством. Продуманная система вентиляции и кондиционирования.



