Компания
О студии
Лицензии
Вакансии
Новости
Вопрос-ответ для клиента
Гарантии
Политика конфиденциальности
Авторы
Портфолио
Услуги
Дизайн-проект
Квартира
Комнаты
Однокомнатной
Двухкомнатной
Трехкомнатной
Четырехкомнатной
По помещению
Прихожая
Гостиной
Студии
Детской
Ванной
Кухни
Спальни
Туалетов
Балкона
Домашнего кабинет
Квартир по м2
100 кв м
38 кв м
25 кв м
27 кв м
42 кв м
80 кв.м
60 кв м
90 кв м
60 кв.м.
54 кв.м
По стилю
Классическом
Современном
Скандинавский
По типу здания
Ремонт квартир
Ремонт апартаментов
Проектирование жилых помещений
Новостройки
Дома
Таунхауса
Коттеджей
Дома под ключ
Офисов
Fit Out офисов
Ремонт офиса
Коммерческих помещений
Салонов красоты и парикмахерских
Кафе
Ресторана
Магазина
Шоу рума
Бутика
Барбершопа
Магазина одежды
Магазина цветов
Мебельного магазина
Спортивного магазина
Ювелирного магазина
Детского магазина одежды
Коворкинг центра
Детского магазина
Нежилых помещений
Проектирование нежилых помещений
Другие услуги
Авторский надзор интерьера
Подбор мебели, аксессуаров и осветительного оборудования
3D Визуализация проекта
Разработка чертежей
Декоратор интерьера
Стили интерьера
Классика
Модерн
Ампир
Неоклассика
Средиземноморский
Минимализм
Лофт
Хай-тек
Скандинавский
Aрт-деко
Cовременный
Современная классика
Фен Шуй
Экодизайн
Мемфис
Шале
Поп-арт
Фьюжн
Ретро
Английский
Ар-нуво
Баухаус
Цены
Акции
Новости
Контакты
Москва
Апрелевка
Балашиха
Бронницы
Коммунарка
Красногорск
Краснодар
Люберцы
Московский
Мытищи
Некрасовка
Одинцово
Подольск
Солнцево
Сочи
Химки
Проектирование,
дизайн квартир
и загородных домов
Задать вопрос
+7 (495) 921-37-00
+7 (915) 331-77-33
Обратный звонок
Главная
Портфолио
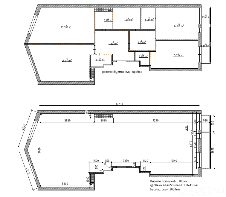
Дизайн на Набережной М. Шагала, 123 м2 в городе Москва
Дизайн на Набережной М. Шагала, 123 м2 в городе Москва
Хороший проект создается, а не покупается. Спросите у нас, каким будет ваш!
123.00 м
2
Подробнее
Получить подробный проект
Задать вопрос
Поделиться ссылкой:
Характеристики
Площадь
123.00 м
2
Наши услуги
Дизайн квартиры в классическом стиле
Дизайн квартир 27 кв м
Дизайн шоу рума
Галерея
Получить подробный проект
Оформите заявку на сайте, мы свяжемся с вами в ближайшее время и ответим на все интересующие вопросы.
Вернуться к списку проектов
Следующий проект
Выполненные проекты
Смотреть все
ЖК Династия 65кв.м
ЖК WOW
Барбершоп в современном минималистичном стиле
ЖК "Шагал"
ЖК "Причальный"
ЖК "West Garden"
ЖК "Now"
Смотреть остальные 1959 выполненных проектов
vp
Рассчитайте стоимость ремонта