Описание
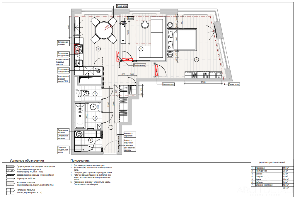
Этот проект 56-метровой однокомнатной квартиры в ЖК "Береговой" отличается грамотным зонированием и рациональным использованием каждого квадратного метра. Благодаря профессиональному подходу дизайнера, удалось максимально эффективно организовать пространство и создать комфортную планировку. Входная зона оборудована многофункциональным шкафом. Просторная кухня-гостиная выполнена в единой стилистике. Спальня изолирована и имеет собственный санузел. Дизайн интерьера современный и лаконичный с использованием качественных отделочных материалов.



