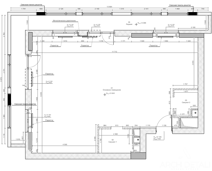
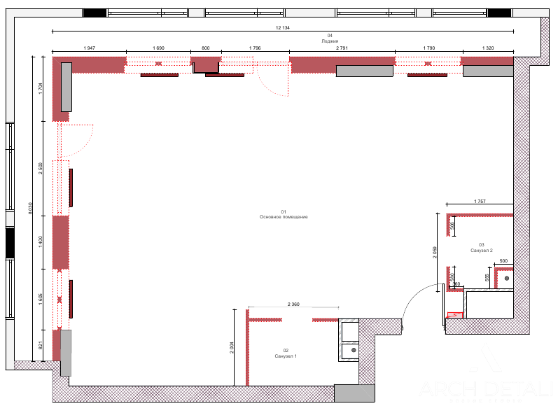
Описание
Этот дизайн-проект демонстрирует гармоничное сочетание современных тенденций и уютной домашней атмосферы. Просторная квартира выполнена в светлой цветовой гамме с использованием натуральных оттенков дерева, камня и тканей. Мягкие и плавные линии мебели, а также тщательно продуманное зонирование пространства придают интерьеру воздушность и легкость. Изюминкой дизайна стало сочетание классических и hi-tech элементов: люстра в стиле ар-деко и минималистичный камин.



